The 8-inch user will be able to reach all shelves without a step stool. In the past it was standard to install kitchen cabinets 18 inches off of the countertop.

35 Inspirational Height Of Upper Cabinets Kitchen Cabinet Dimensions Kitchen Wall Units Kitchen Cabinet Sizes
There are of course some exceptions to these standards.

Standard Height Tall Kitchen Cabinets. Height-84 90 and 96 inches. The answer isnt as cut and dry as you might like because it often depends on the cabinet style the home and the family that lives there. Widths vary depending on the space available with 12 inch 24 inch and 36 inch tall kitchen cabinet widths commonly available.
A slightly newer trend is to have midistudio height tall cabinets. For height you have the option of 30 inches 36 inches or 42 inches. Once installed over your base cabinets the top of your wall cabinets will be at 84 inches 90 inches or 96 inches respectively.
When the home chefs are tall. With an upper cabinet mounting height of 54 inches the top of the upper cabinets would. A perfectly level floor is rare so adjustments.
Standard ones usually come in three heights. It always looks nice when a pantry goes from floor to ceiling or to where it. 84 90 and 96 inches.
If you have standard eight-foot ceilings you might consider an 84-inch cabinet height but the choice is purely aesthetic. If the people using the kitchen are on the taller side say 510 and above theyll see the cabinets from a different angle than the average eye line. Most pre-built base cabinets already conform to the 34-inch-tall height standard which factors in a cabinet height of 31 inches and a toe kick area between the cabinet and the floor of.
With tall kitchen cabinets the ones that extend from the floor to almost ceiling theres more measuring involved. Standard Base Cabinets Most base cabinets are between 34 12 and 35 inches tall without the countertop. Overall the physical dimensions and mounting directions of tall cabinets mirror those of the wall cabinets except for the expansive height.
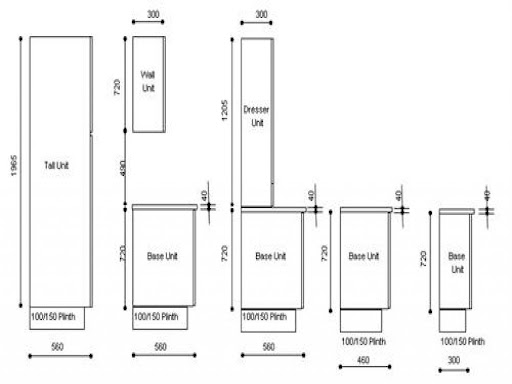
These cabinets are approximately two-thirds the height of standard tall cabinets and can range between 1200 -1500mm. However with the change in times and shifting trends it is becoming much more popular to add a bit more breathing room to the kitchen by raising the height of the cabinets. The standard height of an overhead cabinet is 30 inches but 36-inch or 42-inch tall cabinets are available to allow you to extend the cabinets to the ceiling to maximize storage space.
The width is between 12 and 36 inches although the standard is 30 inches which might have one or two doors. Past cabinets show that it is standard to install cabinets about 18 inches off the countertop but its becoming more popular to hang cabinets a bit higher for more space such as 20 inches or more. This leaves 18 inches of space between your base cabinets and your wall cabinets after the countertops.
This is also true for islands and peninsulas. Standard heights for wall cabinets are 12 inches for going over wall ovens or microwave ovens and 36 to 48 inches for kitchens with higher-than-standard ceilings. A standard height that works for a lot of people but isnt necessarily best for everyone.
This is more popular in Europe and smaller apartment-style kitchens. Tall cabinets are their own speciesthey can range from 84 to 96 inches tall in general and 12 to 24 inches deep. You can select cabinets to reach from floor to ceiling or you can have the 84-inch cabinet that leaves about a foot up top between the cabinet and ceiling.
Standard heights are just that. When it comes to height for these cabinets you have three options. Anyone shorter may need a step stool--or the assistance of a taller family member--to easily access upper shelves.
Cabinets are sold in standard heights of 30 36 or 42 inches. With the standard upper cabinet 30 inches tall and 12 inches deep a 5 ft. Here are tall cabinet basic dimensions.

Kitchen Cabinet Dimensions Kitchen Cabinet Dimensions Kitchen Cabinet Height Cabinet Dimensions

Cabinet Heights This Will Be Handy Kitchen Cabinet Sizes Kitchen Cabinets For Sale Kitchen Wall Cabinets

Kitchen Cabinets Dimensions Standard Cabinets Sizes Kitchen Cabinet Sizes Kitchen Cabinets Measurements Kitchen Cabinet Dimensions

Pin Oleh Jerivs Uy Di Kitchen Teknologi

View Topic Show Your Walk In Pantry Home Renovation Building Forum Kitchen Drawers Kitchen Cabinet Drawers Kitchen Interior Design Modern

Kitchen Cabinet Sizes What Are Standard Dimensions Of Kitchen Cabinets Kitchen Cabinet Sizes Kitchen Cabinet Dimensions Upper Kitchen Cabinets

35 Inspirational Height Of Upper Cabinets Kitchen Cabinet Plans Upper Kitchen Cabinets Kitchen Cabinet Dimensions

Perfect Kitchen Cabinet Size In Cm And Description Kitchen Cabinet Dimensions Upper Kitchen Cabinets Kitchen Cabinet Sizes

Door Design Outline Google Search Kitchen Cabinet Dimensions Upper Kitchen Cabinets Kitchen Wall Cabinets

The New Kitchen Cabinet Rules Upper Kitchen Cabinets Kitchen Layout Measurements Kitchen Cabinet Dimensions

Kitchen Cabinets Buying Guide Hometips Kitchen Cabinet Sizes Kitchen Cabinet Plans Kitchen Cabinets

Kitchen Cabinets Sizes Kitchen Cabinet Sizes Kraftmaid Kitchen Cabinets Kitchen Cabinet Dimensions

Pro Wooden Guide Get Marantz Wood Cabinet Plans Kitchen Cabinets Height Tall Kitchen Cabinets Kitchen Cabinet Dimensions

Kitchen Counter Height Table Island Standard And Depth Or Typical Bar Dimensions Large Si Kitchen Cabinet Dimensions Top Kitchen Cabinets Kitchen Cabinet Sizes

Standard Kitchen Cabinet Heights Google Search Kitchen Cabinet Dimensions Kitchen Set Cabinet Kitchen Wall Cabinets

Kitchen Cabinet Types Shapes Gif 356 224 Kitchen Cabinet Plans Kitchen Cabinet Sizes Kitchen Cabinets Height

Standard Kitchen Counter Depth Ehow Kitchen Cabinet Dimensions Upper Kitchen Cabinets Countertops

Kitchen Cabinet Dimensions Pdf Highlands Designs Custom Cabinets Bookcases Built Ins Kitchen Cabinet Dimensions Kitchen Cabinet Plans Cabinet Dimensions

